ENSENYAT - TARRIDA
arquitectes
︎
I
Selecció de projectes
Contacte
︎
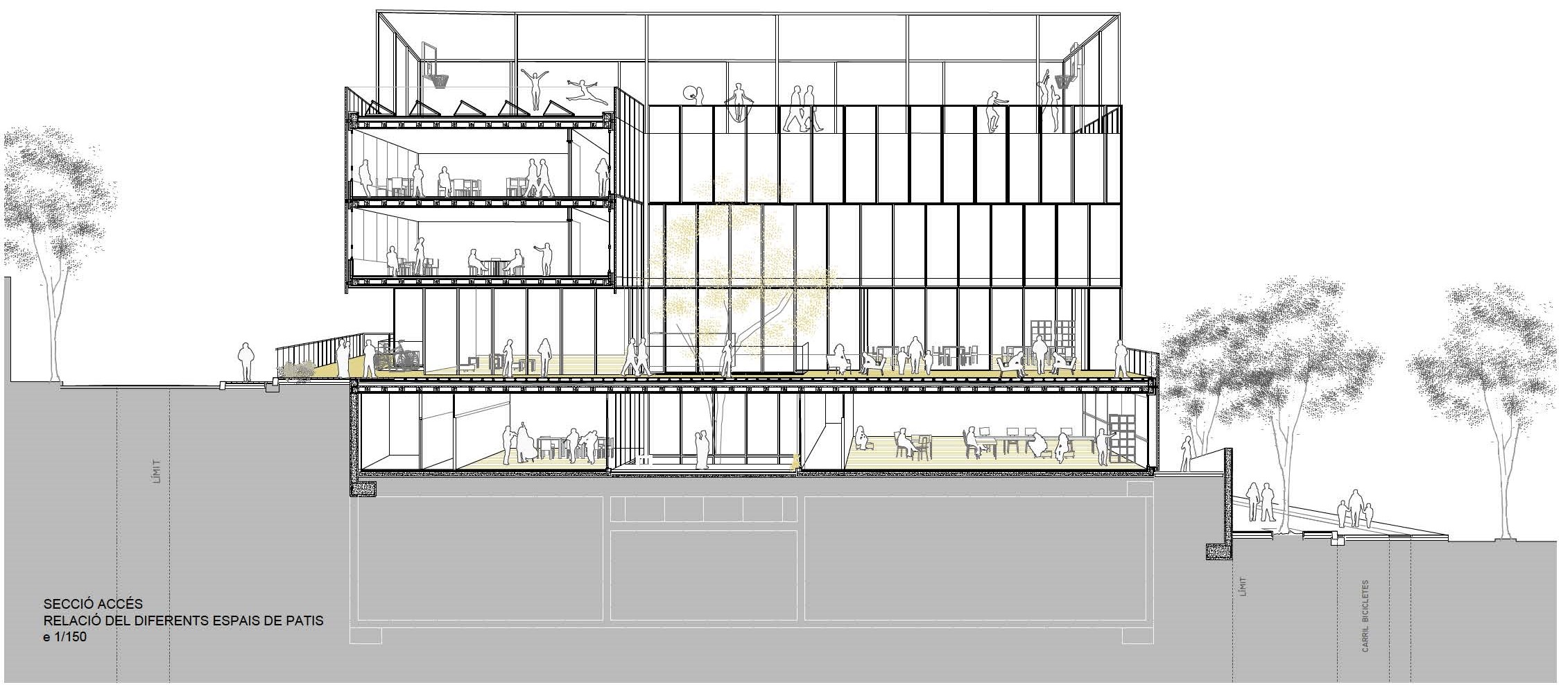
Institut Vallcarca
. Barcelona I 2020 I Consorci d’Educació de Barcelona I
Seleccionat
+ UTE Bayona-Valero, Cantallops-Vicente